海南陵水县国企培训交流中心经营权转让招商项目
面议
收藏
项目类别物业租赁
性质国有
剩余时间
行业
所在地区海南省省直辖县级行政区划陵水黎族自治县
概要及推荐理由
(1)本项目位于海南省陵水黎族自治县中国电科海洋信息产业基地内,靠近海南环岛高速英州互通路出口附近,距三亚凤凰国际机场约58KM(车程约1小时),距陵水县政府和陵水火车站约28KM(车程约30分钟),距清水湾景区约4KM。(2)项目建筑面积23861.65㎡,主体建筑结构为框架结构,住宿房间总规模约为193间,设置在南侧1-5层,房间类型主要包括标准单人房、标准双人房、公务房以及残疾人客房,标准间面积为34㎡。北侧1-2层为会议室及培训教室,其中大会议室1个、小会议室3个、培训教室4个。主楼负一层停车场有地下停车位42个,地上停车位34个。
项目详情
有无电梯: 有电梯
装修程度: 精装修
交通情况: 临近高速入口
合作方式: 整体出租
楼层: 中
规划用途: 商业
月租金: 面议
面积: 23861.65平方米
标准层高: 面议
车位个数: 面议
项目简介
一、项目介绍
1、区域规划:综合交通枢纽和区域现代商贸物流中心
陵水县是集“山、海、河、湖、岛、泉、林、湾”为一体的热带滨海黎族自治县,是中国最优良的南繁育种育苗基地之一,享有种业硅谷美誉。
依托“三湾”优势和滨海资源形成以旅游度假功能为主的滨海旅游产业带。城镇发展轴和山海联系轴。依托海南环岛高速打造城镇发展轴;依托G361形成山海联系轴。“一主一副”两个综合服务中心,“一主”即中心城区综合服务中心,“一副”指英州及清水湾地区形成的城市副中心。构建“一屏一带,双核双点,蓝绿交织”的生态安全格局。
陵水县全力建设国家海洋经济发展示范区、国家大健康产业融合发展样板区、国家农业科技创新应用引领区、国家级数字服务贸易新基地、世界级滨海旅游度假目的地、国际教育文化开放合作交流中心。

2、项目位置
本项目位于位于海南省陵水黎族自治县英州镇万福路,临近清水湾度假区;
距三亚凤凰国际机场58KM(车程约1小时),距陵水火车站28KM(车程约30分钟),距陵水县政府30KM,距清水湾景区约4KM,距南湾猴岛约14KM。

3、项目概况
项目周边有恒大海上帝景小区、海鑫苑清水湾小区、智汇城小区、碧桂园小区等居住项目;
有清水湾科技园、科惠信息产业园等产业园区。

4、技术指标

5、项目现状
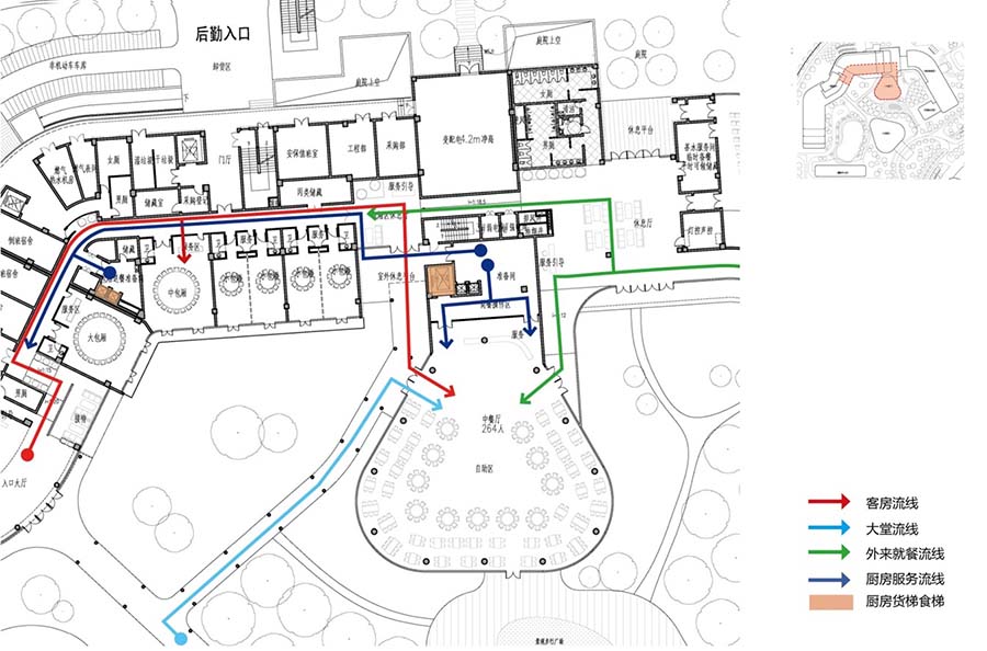
(1)平面示意图

(2)项目现状
①酒店外观


②酒店大堂

③客房区大厅

④标准大床

⑤标准双床

⑥会议室大厅

⑦餐厅

(3)分区介绍
①客房区
客房总规模为193间,设置在主楼南侧1-5层,房间类型主要包括标准单人房、标准双人房、公务房以及残疾人客房。





②会议室
主楼北侧1-2层为会议室及培训教室,共计8间会议室,其中大会议室1个、小会议室3个、培训教室4个。

③配套设施
接待大厅、餐厅、康体中心分别为1层独立建筑物。接待大厅、餐厅为三角形建筑物,均由连廊与主楼连接。康体中心为矩形建筑物。

二、市场概述
1、旅游资源
清水湾景区是英州镇的主要旅游景区,坐落在中国北纬18°黄金海岸,距三亚凤凰国际机场58公里,距环岛高铁陵水站27公里,南临蜈支洲岛,北眺南湾猴岛,西临三亚市海棠湾。全年平均气温25.9℃,气候温润宜人,海岸线长约12公里,海水能见度高达25米,沙滩平缓涉水200米远,水深也不过2米,水清沙白,是世界顶级的天然海滨浴场。海洋水质量达到国家一类海洋水质标准,海水透明度好,潜水能见度较高,有少量珊瑚和大量的管虫分布。海沙极细腻,走在沙滩上能发出银铃般清脆的天籁之音,与美国的夏威夷、澳洲的黄金海岸,并称为世界三大会唱歌的沙滩。

2、酒店市场
(1)旅游业快速增长:
2023年,陵水黎族自治县的清水湾滨海体育旅游线路入选“2023年春节假期体育旅游精品线路”,分界洲岛旅游区获评国家体育旅游示范基地、荣获“和美海岛”国家级荣誉称号。2023年陵水接待游客961.28万人次,同比增长47.6%,累计增速全省排名第5;实现旅游总收入92.21亿元,同比增长55.5%。游客人次已恢复到2019年水平,并呈上升趋势。
2024年“五一”假期海南省旅游接待人数为332.37万人次,同比增长3.7%;旅游总花费43.65亿元,同比增长3.1%。与2019年同口径对比,全省接待游客总人数增长61.0%,旅游花费增长84.6%。
2024年一季度,三亚接待过夜游客858.37万人次,同比增长7.8%,旅游总收入320.46亿元,同比增长11.8%,创历史新高。





(2)房价区域内波动
2013-2022年五星酒店房价在810-920元/间夜的区间范围内上下波动。

(3)出租率保持稳定
2013-2018年出租率大体保持稳定,2019年略有下降。

(4)清水湾景区
距本项目约4KM的清水湾景区,是英州镇的主要旅游景区,也是高端和豪华酒店的聚集区。酒店开业(装修)时间大多在2015年至2022年之间,淡季平日价格在120元至2100元/间夜起区间内。(数据来源:携程旅游网2024年5月平日价格)


三、项目亮点
1、区位优。项目距清水湾景区约4公里,有一定区位优势。
2、项目新。项目建成投入使用不足一年,内部装修按照酒店标准已经完成,已经投入使用,可以直接进行运营。
3、整体盘活,体量适中,可改造空间大。项目规模适中,结构规整;客房数量充足,没有异形房,出房率高;业态配比相对合理,配套功能相对齐全,后续改造空间较大,对于项目后续打造为综合性酒店提供了良好的基础条件。
4、会议室多,配套面积充裕。本项目具有大小会议室8个,餐厅、康体中心等配套空间面积充裕,便于后期完善酒店内的配套设施。
5、停车位充裕。项目占地面积较大,有足够的空地规划停车位,停车便捷度高。
四、合作方式
合作方式:经营权转让
费用模式:固定租金
合作期限:5+5年
合作价格:依评估价格确定
受让条件
无。
附件下载
展开详细